英国·威廉希尔(股份有限公司)williamhill-唯一中文官方网站

当前位置: 主页 > 适老前沿 > 行业动态

极低成本也能改造出高品质养老院:一个街道养老服务中心的设计样本

作者:小编发布时间:2025-09-21 14:42

  

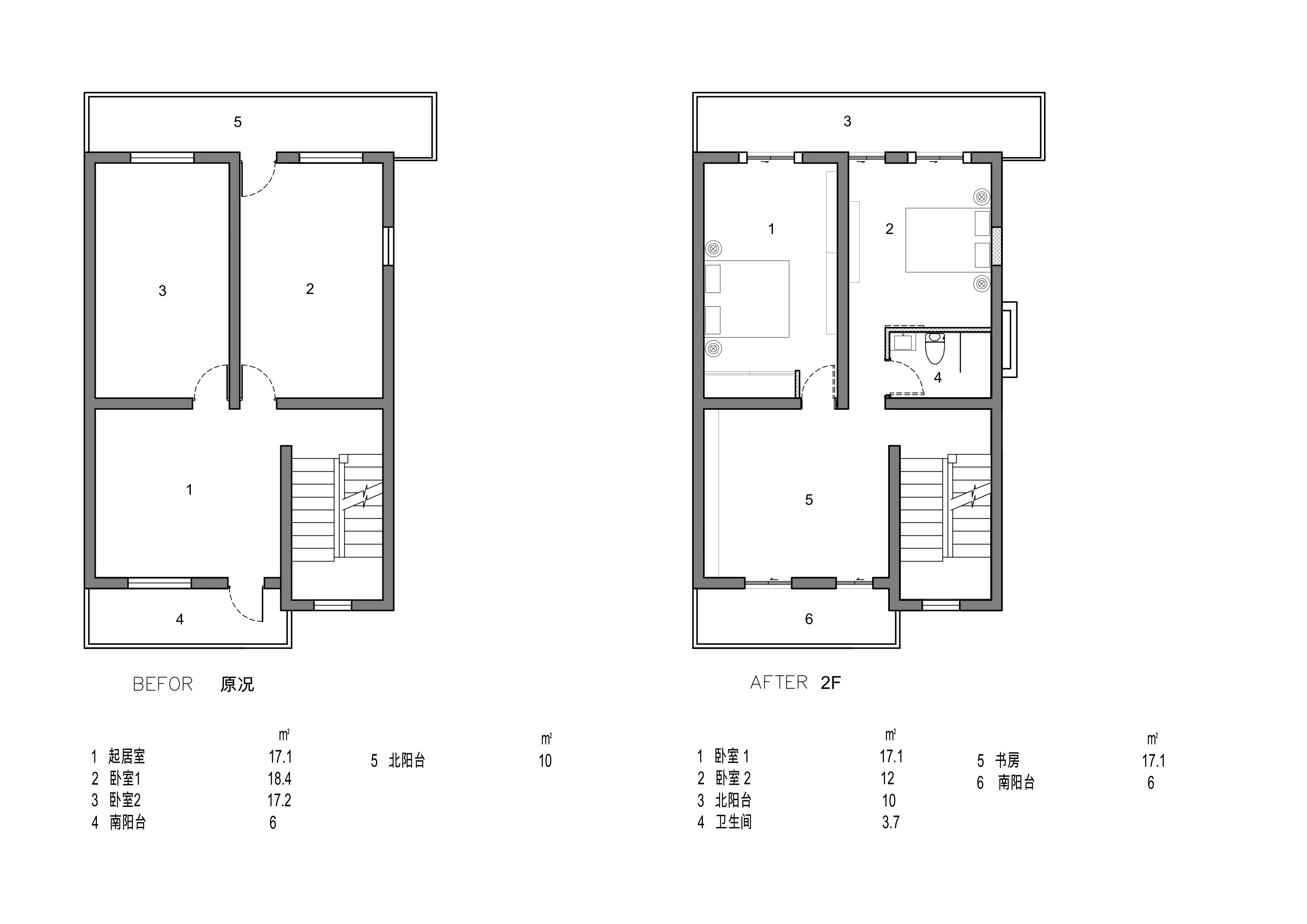
极低成本也能改造出高品质养老院:一个街道养老服务中心的设计样本(图1)

  【9月26-29日】成都--医康养标杆项目考察,涵盖 :田园CCRC社区 、全周期康养社区、居家养老模式、日式养老机构、医疗健康综合体(文章底部查看详情)

  ·由成都市民政局倡导实施,中京爱侬为建设运营方,科图一体化改造设计,是极低成本下通过设计力量来平衡品质的普惠型养老项目实践代表。

  我们希望项目既能传承好成都这座千年古都的文脉,发挥好川西文化,又能为长者提供一个回顾历史、找回老成都记忆的场所,还希望在项目落成后,能为“三圣乡-白鹭湾”这张颇负盛名的康养湿地名片基础上,多增加一道关爱大众的色彩。

  成都是国家历史文化名城,古蜀文明发祥地,中国十大古都之一,且项目用地位于成都后花园——4A景区三圣乡景区内,老成都人心中的避暑养老圣地。“巴山蜀水”自然资源丰沃,环境优美。看似多样化的文化与优渥的自然环境,在有限的经费和众多的心愿面前,让设计“大有可为”又“难以下手”。

  如何充分保留原有项目的基础设施上改造,才能实现最低成本下的更高品质,又符合当代康养机构功能的完美需求,并且要成为普惠型服务弱势群体的康养样板,是对设计师在养老产业实践素养的极致考验!

  传统的川西民居大量利用在地化的绿色建材,纯粹且质朴。目标客户都是成都日新月异变化的亲历者,还原老成都的场景在成本和立意上自然成了最佳的解题思路。

  传统普惠型养老中心入住的都是穷苦、孤、寡、残疾老人,大多靠财政救济,或微薄的收入支付养老费用。这类型养老院受限于投资回报,一般来说难有规划设计,一个空置的环境,配上简陋的设施就开始运营。人性化与舒适性无从谈起,冬天光线不足,给人阴森凄凉感;而在夏天空气流通受阻,气味污浊;娱乐休闲、私密场所等更是难以保证。这类型的养老中心其窘迫现状已经引起了社会的关注。

  经反复分析和推理,设计师决定摒弃地产大背景下建筑设计与装饰的浮夸,在保持项目原有的地形与形态的同时,以去地产化,适老化,在地化为主旨,将三圣花乡特有自然风貌与川西林、院、屋、水等富于美学价值的自然元素相融重构。

  加强建筑外部风貌塑造,优化空间格局,选择在地性元素进行必要的功能补充。通过轻微的装饰,注入新的活力,实现简单直白、干净纯粹的效果。打造兼具成都特色与现代气息的养老环境。

  建筑包含多种功能区,包括活力公寓、专业护理区、社区诊疗所等,可为长者提供全面周到的服务。我们从建筑外观到空间感受均采用木质色来进行修饰,米白涂料和木色涂料的组合,增加空间的温度。改造内容包括入口门头、主楼外立面更新以及公区加建3个部分。

  在入口大门处着眼于建筑必须的功能,包括遮雨等候,停车落客,安保管理,满足消防车道净高,用最朴素的手法进行设计。

  在所有节点上考虑墙面耐久清洁的压顶及滴水和踢脚,还原最本质的功能与外观统一。

  由于在疫情时期这栋建筑被做了临时的功能改造,外立面已经受到一定程度的破坏,空调机位和暴露的管线纵横交错。在多次考察调研后,充分理解了原来建筑师的设计意图基础上对建筑进行了外立面改造设计。

  项目是敞开式外廊,动线较长,同质化空间较多,我们在建筑体量分色上,对交通核及出入口进行木质色跳色切分,方便老年人进行出入口的辨识。同时,在建筑体量上用木质色将非横向线条的体量进行一个退层次的减法。

  考虑多种形式下的防雨,采用了西南地区普遍倾向的雨棚,局部采用竹席进行遮阳和装饰;保留原建筑设计的外廊天花内藏空调机位和隐藏式落水管等低技化的节点做法,使得外立面干净整洁,也更好的节约成本。H型钢梁夹实木,让结构外露的力量感和木质的温和感交错统一。

  在老人活动的区域细节考虑铺地材质,表面防滑耐磨且避免轮椅颠簸,场地处理平顺避免积水。节约出来的成本用于增加一块移动种植区。通过重组自然景观与项目周边环境相融,打造出明亮、品质、温馨、舒适、安静、平和的居住环境体验。

  整个庭院四季清幽,竹林、藤椅、青砖等饱含成都印象的在地化元素,不仅为长者追溯记忆创造温馨的环境,也更好的节约了成本。

  庭院大量采用川西林盘特色的竹木,将广场划分为多个小组团休闲区域,支持不同需求的老人开展丰富的室外活动。除设置集体活动的场所外,还设置了老年人可以独处或进行私密对话的小空间,如遮阳的座位、凉亭等,为老年人提供丰富的选择。

  同时在公区大量采用饱含成都记忆的茶座,竹林,让成都建设者得到一定的记忆回溯。

  庭院留足可扩展空间,当条件允许时,未来可设置鸡舍或其他宠物饲养设施,使老年人有机会与宠物互动,甚至参与照料,增进其情感体验和成就感。还可在花园中加入用于开展日常家务活动的空间,如晾衣角、园艺工具角等,保进认知症老人通过简单的劳动重拾自信与生活乐趣。

  动线规划依据场地原有特征进行交通动线的多轮优化,实现了人车分流且动线最短。车行出入口和人行出入口由一个保安室进行管控,方便管控。结合现状设置林下停车,一方面可充分利用大门处的保安室对进出车辆管控;另一方面轻微进行林间改造就实现了遮阳遮雨的停车场,且动线短。

  在对运营简化充分考虑的基础上进行绿化景观空间改造,通过低矮的青砖景墙分隔,一方面划分了不同功能的空间;另一方面加强了区域的通透性与交流性,确保认知症老人在室外突发状况时能被及时发现;同时保证了老年人在花园内绝大多数位置都可以看到花园的出入口,便于其确定自身所处方位,自主回到室内,增强其空间掌控感。

  【参会人员】:政府人员、养生度假、健康管理、社区养老、医疗照护、文旅度假及相关企业董事长、高管。

  【上午】中铁·春台悦——中铁首个城市田园ccrc康养旗舰社区,开创全国田园居家养老新模式,集体建设用地做康养的新模式

  项目规模:总占地约1100亩,康养及配套用地145亩,田园配套用地955亩。

  项目简介:中铁首个城市田园CCRC康养旗舰社区,引入国际领先的CCRC持续照料模式,开创全国田园居家养老新模式,三甲医院等优质医疗资源合作,为长者的健康保驾护航。集活力养老社区、养生特色酒店、医养结合康复照护机构、健康产业配套、田园农旅观光、亲子研学等健康产业于一体。涵盖千亩田园CCRC康养社区:春台悦、医养结合康复照护机构⸺春台望、观光休旅田园⸺梦里原乡三大组团。服务客群:活力老人、半失能、失能、认知症、术后康复者。

  【下午】京东方智慧医养社区·锦城拾光——医养智融、生态环绕的全周期康养社区

  项目规模:总占地约1100亩,康养及配套用地145亩,田园配套用地955亩。

  项目简介:锦城拾光位于成都市双流区天府国际生物城景星路1号,区域环境威廉希尔williamhill优美、水源优质、周边配套齐全。成都京东方智慧医养社区·锦城拾光是京东方科技集团 (BOE)自建自营的养老社区,位于成都市双流区天府国际生物城,紧邻成都京东方医

  院及永安湖森林公园,占地面积72亩,建筑面积约11.6万平方米,共设置700余个居住单元,为自理、半自理、失能、失智的长者提供全方位多维度的生活照护服务。

  锦城拾光引进国际先进养老品牌美国水印(Watermark)运营经验,同时借鉴日本照护体系细节,结合京东方健康医疗优势,形成“医养融合、智慧赋能、活力共享”三大核心特色,并提供涵盖七个维度、约160余项服务。

  【上午①】中京爱侬秀丽养老服务中心——“小而美 小而精”社区嵌入式养老机构

  项目简介:本项目主打离家一碗汤的距离,即可享受专业的医养照护,又不离开自己熟悉的生活环境,还可方便家人随时上门关照。中京爱侬秀丽养老服务中心这种城市型社区养老也是老龄化当前很好的选择!本项目为城市核心住区嵌入式社区养老机构,现已全面投运,是经典“小而精”、“小而美”社区养老项目,是人性化、适老化、温馨舒适的长者生活居家场所,以期真正实现“老有所养、老有所医、老有所为、老有所学、老有所乐”的养老家园。

  【上午②】兴城康养·美邸舒养之家海桐苑——国际先进的日式照护理念和服务标准,无缝连接社区医疗,为长者提供专业轻/中/重度失能护理

  项目简介:兴城康养美邸照护之家为国内首屈一指的认知症专业照护机构,针对轻度、中度、重度不同层次的认知症患者提供全面有针对性的医疗及生活照护,品字形单元式组合方式、全单人居室、宽敞的分层活动空间、洄游动线、明显的标识标志、回忆墙等等细节适老化设计,为认知症老人提供一个舒适安心的家。同时本项目秉承国际先进的日式照护理念和服务标准,凭借优越的地理位置,尽享便利交通、医疗配套、四季花园。无缝连接3000㎡社区医疗,为入住长者提供及时便捷的医疗保障。枫树苑服务活力长者,海桐苑服务半失能、失能及需要康复的长者。

  【下午】成都鹏瑞利国际医疗健康中心——西南地区高端定制一站式健康生活新地标

  项目简介:本项目是新加坡鹏瑞利集团有限公司设立的以医疗健康为核心驱动的综合体。目前已经入驻了成都循上鹏瑞利医院、成都顾连锦宸康复医院、成都爱帝宫月子中心、成都冬雷脑科医院、成都韩妃整形外科医院、成都影和医学影像诊断中心、成都新华健康体检中心、成都碧然医疗护理中心等30余家健康机构。已形成了集母婴月子、体检筛查、健康管理、专科诊疗、康复管理、老年护理、互联网医疗于一体的“全生命周期服务”医疗生态圈。

  项目规模:拥有125亩的宽敞空间;建筑面积:35,000平方米。社区内设计有720张床位,其中医疗床位占据110张。

  项目简介:锦欣百花锦园是一个旨在为老年人提供全方位、多样化的养老服务的综合性颐养基地,坐落于有城市绿肺之称的三圣乡板块和白鹭湾湿地公园之中,环境优美,含氧量极高,十分适合老人们在不脱离城市即可享受田野花园的生活,社区设计总床位720张,其中康养600张,自设2级老年病医院,配备医疗床位110张,以用户为中心,注重长者的生活需求和居住感受,提供优美,舒适、安全、便利的服务环境。强调人性化设计,在空间布局中涵盖了对老年人身体状况、认知能力,运动功能等特点考虑;整体以一元多核心,庭院式小组团形式呈现,动静分离有序,以C号楼为园心,涵盖社区商业和文娱活动功能,同时无缝衔接医疗配套,餐饮菜谱也是由专门的营养师负责搭配,涉及特殊饮食还可由华西营养科进行指导,如糖尿病餐,降血压餐,痛风餐食(降嘌呤)等。

  备注:☆本次活动仅限相关企业董事长、总经理等高管级别参加,会收取一定费用,请知悉,非诚勿扰!

  正式报名流程:领取报名表→填写报名表签字或盖章拍照回传审核→办理报名费用→落实酒店安排,开具发票

  覆盖日韩养老机构、高端医疗、疗愈度假村、CCRC综合养老社区、三产融合、温泉度假区等知名先进案例,深入首尔、大阪,实地考察日韩养老产业、康养度假等优秀实践。

  深入考察高端养老、疗愈度假村、三产融合农场、高端医疗、CCRC 综合养老社区等,我们带着问题出发⸺不仅与项目操盘手深度交流,更有行业专家教授、养老机构经营者以及权威专家等,现场分享国际经验做法与实践教训,让您能既看懂项目运营模式,更洞悉其最本质的底层逻辑!

  沉浸式打卡疗愈温泉、亲子农场,仰望璀璨星空、漫步蔚蓝海岛,解锁当地地道美食,每一刻都满是惊喜与治愈。

  日本、韩国顶级农康旅项目参观考察,涉及韩国首个居家高端银发公寓、老龄化的疗愈中心、世界第一人参品牌—正官庄、韩国标杆性社区健康管理和预防医学中心、日本排名第一的“亲子牧场”、农业稻田风的网红甜品工厂、日本最先进的医疗/康复医疗综合医院、温泉康养项目、日本最具代表性的CCRC综合养老社区等。

  与高端养老和医疗机构、疗愈度假村、亲子农场、世界级人参品牌、温泉度假村等项目操盘手座谈交流项目理念、管理运营、品牌故事。

  发现行业新机会、链接产业新资源、找到转威廉希尔williamhill型操盘新路径,抱团进步、联合发展。

  康养投资、文旅投资、医疗机构、休闲农业、乡村振兴、温泉度假村、田园综合体、村落品牌、旅游规划等企业高管;

  农场设计、客栈设计、建筑设计、景观园林、室内设计等企业及设计院中高层负责人。

  龙仁银发老龄社区——韩国标杆性适老化住宅项目,韩国首个分户型高端银发公寓

  善村康养疗愈度假村——韩国最知名康养度假项目,韩国首个专注于健康老龄化的疗愈中心

  WELLNOW疗养中心——韩国标杆性社区健康管理和预防医学中心,连续五年荣获市民最喜爱疗养品牌的日托型养老服务机构

  MOKUMOKU牧场——日本排名第一的“亲子牧场”, 日本最成功的的6次产业项目,从零到一打造完整农旅产业链

  医诚会国际综合医院——日本最先进的医疗/康复医疗综合医院,尤其擅长癌症治疗/癌症筛查/精密体检/微创医疗

  有马温泉康养小镇——日本三大古泉康养小镇之一,以温泉为核心的打造特色观光小镇,学习温泉康养项目打造经验

  1.全链条升级:从品种优化、有机栽培的一次产业,到多元加工的二次产业,再到农旅融合的三次产业,实现洋葱产业全链条覆盖与价值提升

  2.高附加值挖掘:通过开发加工食品、特色调味品,结合农园观光、主题餐饮等,将洋葱附加值提升,显著增加农民收入

  3.品牌与市场拓展:依托 GI 认证强化品牌,借洋葱节、联名商品及电商直销,扩大市场影响力,减少中间环节保障收益

  4.社会效益显著:创造就业吸引年轻人返乡,推动地区从单一农业区转型为综合体验型旅游目的地。

  1.生态修复与设计融合:原址挖山遗迹,以 “自然复活” 理念打造绿色空间

  大阪彩之乡康养综合社区——日本最具代表性的CCRC综合养老社区,学习日本养老护理中心的运营及日常护理模式

Copyright © 2025 英国威廉希尔股份有限公司 版权所有   冀ICP备19019220号-1